Haus zum Kauf in Hamburg
Platz und Potential für Ihre Ideen - Doppelhaushälfte mit großer Anbaumöglichkeit
Preise & Kosten
Standort
Glogauer Straße 51, 22045 Hamburg
Preise
- Kaufpreis 548.000 €
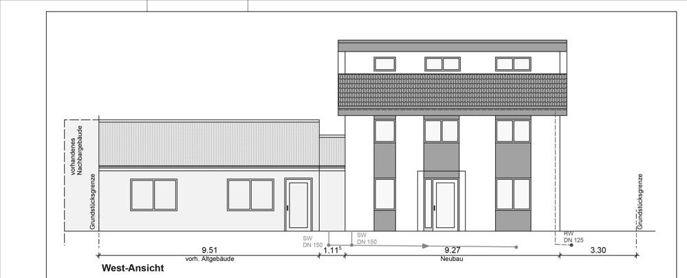
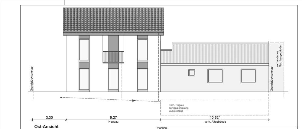
Die Immobilie
Haus zum Kauf
- Objekt-Nr 838
- Anzahl Etagen 1
- Bauweise Massiv
- Unterkellert teilweise
- Heizungsart Zentralheizung
- Kabel/Sat-TV
Räume und Flure
- Anzahl Schlafzimmer 1,50
- Anzahl Badezimmer 1
- Anzahl separate WCs 1
- Anzahl Terrassen 1
Ihr Ansprechpartner

Herr Hauke Finck
Telefon: 004943444059171
E-Mail: hauke.finck@immobilienduo.de
Ihre Anfrage
Energieverbrauchsausweis
0255075100125150175200225250
188,50 kWh/(m²*a)
- Endenergieverbrauch 188,50 kWh/(m²*a)
- Befeuerungsart Gas
- Wesentlicher Energieträger GAS
- Energieeffizienzklasse F
- Gültig bis 27.02.2035
- Energieausweis 2014